NCC 2022 Volume One - Building Code of Australia Class 2 to 9 buildings
Classification
Building class 1a Building class 1b Building class 2 Building class 3 Building class 4 Building class 5 Building class 6 Building class 7a Building class 7b Building class 8 Building class 9a Building class 9b Building class 9c Building class 10a Building class 10b Building class 10c

Filter

Classification
Building class 1a Building class 1b Building class 2 Building class 3 Building class 4 Building class 5 Building class 6 Building class 7a Building class 7b Building class 8 Building class 9a Building class 9b Building class 9c Building class 10a Building class 10b Building class 10c

I1

Part I1 Class 9b buildings

Part I1 Class 9b buildings

Introduction to this Part

This Part provides additional Deemed-to-Satisfy Provisions for certain types of Class 9b buildings where large numbers of people assemble and which contain a stage and backstage area.

Performance Requirements

The Objectives and Functional Statements for Part HI1 are contained in Sections C, D and E of this Guide. The Performance Requirements for Part HI1 are contained in Sections C, D and E. Part HI1 contains additional Deemed-to-Satisfy Provisions for Class 9b buildings.

Deemed-to-Satisfy Provisions

NCC Blurbs

(1) For a Class 9b building or part of a building that is not an entertainment venue

  1. the Deemed-to-Satisfy Provisions of Part I1 apply to every enclosed Class 9b building or part of a building which—
    1. is a school assembly, church or community hall with a stage and any backstage area with a total floor area of more than 300 m2; or
    2. otherwise, has a stage and any backstage area with a total floor area of more than 200 m2; or
    3. has a stage with an associated rigging loft; and
  2. notwithstanding (1)(a)—
    1. I1D4 applies to every open or enclosed Class 9b building; and
    2. I1D7 applies to every enclosed Class 9b building.

(2) For a Class 9b building that is an entertainment venue, NSW Part I4 applies in replacement of Part I1.

NCC Title
Application of Part
NCC State
NSW
NCC Variation Type
Replacement
NCC SPTC Current
Application of Part

(1) The Deemed-to-Satisfy Provisions of this Part apply to every enclosed Class 9b building or part of a building which—

  1. is a school assembly, church or community hall with a stage and any backstage area with a total floor area of more than 300 m2; or
  2. otherwise, has a stage and any backstage area with a total floor area of more than 200 m2; or
  3. has a stage with an associated rigging loft.

(2) Notwithstanding (1)—

  1. I1D4 applies to every open or enclosed Class 9b building; and
  2. I1D7 applies to every enclosed Class 9b building.

Explanatory information

Part I1 contains Deemed-to-Satisfy Provisions additional to those contained in Sections C, D and E for Class 9b buildings.

To clarify which Class 9b buildings are subject to Part I1, and to what extent they are subject.

Class 9b buildings and high fire loads — I1D1(1)

Stages used for live performances can contain high fire loads due to the props, scenery, lighting, and the like used in such productions. Such props and scenery are often also stored in backstage areas, which adds to the fire load.

General application of Part I1

In general, Part I1 applies to specified enclosed Class 9b buildings which:

  • in the case of school assembly, church or community halls, contain both a stage and backstage area which exceeds 300 m2;
  • are not covered by I1D1(1)(a), and have a stage and backstage area which exceeds 200 m2; or
  • have a stage with a rigging loft.

Part I1 does not simply apply to stage and backstage areas, but also to seating areas and aisle lighting.

I1D4 and all Class 9b buildings—I1D1(2)(a)

I1D4 applies to all Class 9b buildings, whether or not they are enclosed, and regardless of size.

I1D7 and all enclosed Class 9b buildings—I1D1(2)(b)

I1D7 applies to all Class 9b buildings which are enclosed, regardless of their size.

A theatre, public hall or the like must—

  1. have a sprinkler system (other than a FPAA101D or FPAA101H system) complying with Specification 17; or
  2. have the stage, backstage area and accessible under stage area separated from the audience by a proscenium wall in accordance with I1D3.

To protect the audience in a theatre or public hall from a fire on the stage.

I1D2 does not apply to all theatres and public halls. See I1D1 to determine which buildings need to comply with I1D2. A stage and backstage area of a theatre or public hall has a high fire load due to the storage of props and scenery/etc.

The audience must be protected from this fire source by either:

  • the installation of a sprinkler system (other than a FPAA101Dor FPAA101H system); or
  • the construction of a proscenium wall between the stage and the audience area.

A proscenium wall must comply with Specification 32.

To set out the detailed construction requirements for a proscenium wall.

The construction details for a proscenium wall are contained in Specification 32.

In a seating area—

  1. the gradient of the floor surface must not be steeper than 1 in 8, or the floor must be stepped so that—
    1. a line joining the nosings of consecutive steps does not exceed an angle of 30° to the horizontal; and
    2. the height of each step in the stepped floor is not more than 600 mm; and
    3. the height of any opening in such a step is not more than 125 mm; and
  2. if an aisle divides the stepped floor and the difference in level between any 2 consecutive steps—
    1. exceeds 230 mm but not 400 mm — an intermediate step must be provided in the aisle; and
    2. exceeds 400 mm — 2 equally spaced intermediate steps must be provided in the aisle; and
    3. the going of intermediate steps must be not less than 270 mm and such as to provide as nearly as practicable equal treads throughout the length of the aisle; and
  3. the clearance between rows of fixed seats used for viewing performing arts, sport or recreational activities must be not less than—
    1. 300 mm if the distance to an aisle is not more than 3.5 m; or
    2. 500 mm if the distance to an aisle is more than 3.5 m.

To enable the evacuation of an audience from the seating area.

I1D4 applies to all Class 9b buildings

Under I1D1(2)(a)I1D4 applies to all Class 9b buildings, both enclosed and open. This means that it applies to theatres, open-deck spectator stands, sporting stadiums, and the like, wherever the public is seated to view an event.

Maximum slope of the floor — I1D4(a)

I1D4(a) deals with the height difference between the floors supporting seats in a theatre and the like. The maximum slope of the floor of 1 in 8 is consistent with D3D11(2)(b).

This slope cannot be used in aisles required to be accessible by people with disabilities. In such a case, the maximum slope of the aisle is 1 in 14, as required by AS 1428.1.

Height of openings in steps

The maximum gap of 125 mm stipulated in I1D4(a)(iii) is consistent with D3D14(1)(d). Figures I1D4a and I1D4b illustrate methods of complying with I1D4(a) and (b).

Width of path of travel to an exit — I1D4(c)

It is often impractical to require the standard minimum width of a path of travel to an exit of one metre between rows of fixed seating. I1D4(c) allows a reduced width in such cases. This width is based on studies of movement between rows.

Distance between the seats should ordinarily be measured:

  • with the seat in the up position if folding seats are used; or
  • directly between the seats, as shown in Figure I1D4c.

I1D4(c) applies only where the public is seated on fixed seating to view an event.

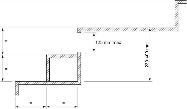
Figure I1D4a

Method of compliance with I1D4(b) if difference between levels is 230-400 mm.

Image
Method of compliance with I1D4(b) if difference between levels is 230-400 mm.

Figure I1D4b

Method of compliance with I1D4(b) if difference between levels is 400-600 mm.

Image
Method of compliance with I1D4(b) if difference between levels is 400-600 mm.

Figure I1D4c

Method of measurement of clearance between rows of fixed seating.

Image
Method of measurement of clearance between rows of fixed seating.

(1) The path of travel to an exit from a stage or performing area must not pass through the proscenium wall if the stage area is separated from the audience area with a proscenium wall.

(2) Requiredexits from backstage and under-stage areas must be independent of those provided for the audience area.

To enable safe egress from the stage and backstage areas of a theatre.

A stage and backstage area of a theatre or public hall has a high fire load. It is also a potential fire source due to stored props, scenery, lighting, special effects, and the like.

Because of the recognised fire hazard, proscenium walls and curtains are required to separate the stage and backstage areas from the audience.

To maintain this fire separation:

  • an evacuation route from the stage side of a proscenium must not pass through the proscenium; and
  • required exits from backstage must be independent of the audience evacuation routes.

A stairway that provides access to a service platform, rigging loft, or the like, must comply with AS 1657.

To set out the requirements for stairways to service platforms, rigging lofts, and the like.

Stairways to service platforms, rigging lofts, and the like must comply with AS 1657.

In every enclosed Class 9b building, where in any part of the auditorium, the general lighting is dimmed or extinguished during public occupation and the floor is stepped or is inclined at a slope steeper than 1 in 12, aisle lights must be provided to illuminate the full length of the aisle and tread of each step.

To make safe evacuation available from theatres.

I1D7 applies to enclosed Class 9b buildings where:

  • lighting is dimmed or extinguished during public occupation; and
  • the floor is stepped or inclined at a slope steeper than 1 in 12.

In case of an evacuation, and when the lights are dimmed or extinguished during a performance, I1D7 requires the installation of aisle lights to avoid people tripping on steps or falling on a ramp.